방배 15 구역은 지난 10일 서초구청으로부터 조합설립을 위한 추진위원회 구성을 승인받아 본격적인 행보를 시작했습니다. 이 구역은 지난해 9월 정비구역으로 지정받아 이번 추진위원회 구성으로 재건축이 착착 진행되고 있습니다. 이 구역은 재건축을 통해 지상 최고 25층 규모로 총 1688세대 새롭게 탄생할 예정입니다.

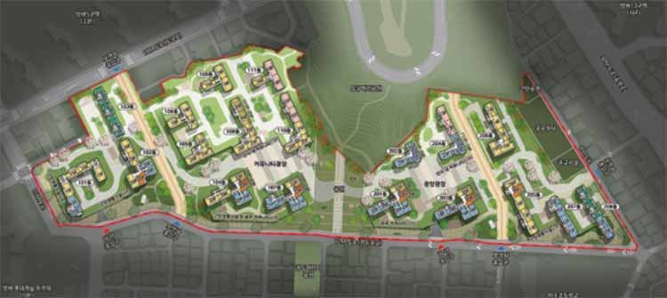
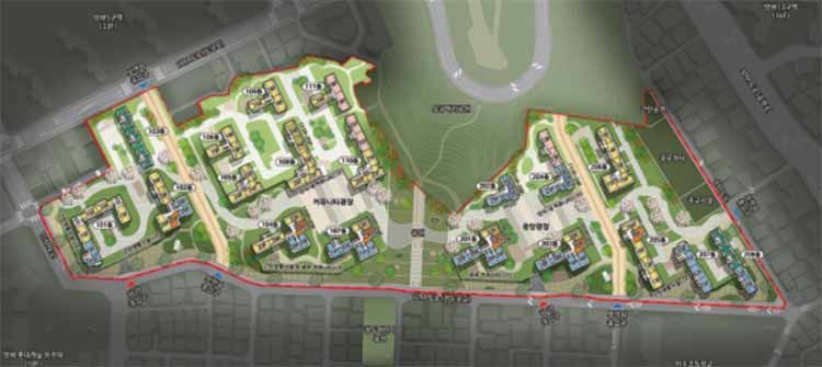
방배 15 구역 사업내용
방배동 528-3번지 일대에 위치한 방배 15 구역은 84,934㎡ 면적에 건폐율 21.8%, 용적률 239%가 적용돼 지하 2층~지상 25층 규모 19개 동 아파트 총 1688세대 및 부대복리시설이 건립될 예정입니다. 토지등소유자 수는 869명이며 임대주택은 310세대가 포함돼 있습니다.
방배 15 구역 추진현황 및 설계계획
방배 15 구역은 2022년 1월 서울시 도시계획심의위원회를 거쳐 9월 정비계획(안)이 결정되면서 정비구역으로 지정고시됐습니다. 2023년 올해 2월 재건축 예비추진위원장을 선출했고 이달 6일 추진위원회 구성을 승인받았습니다.
이 구역은 1종일반주거지역과 2종일반주거지역(7층 이하)으로 사업성이 부족했지만 용도 종상향을 받아내면서 재건축 사업의 토대를 마련했습니다. 구역면적 84,934㎡ 중 공동주택용지 73,728㎡, 종교용지 740㎡, 공공복합청사 2000㎡, 공원 5100㎡, 도로 3366㎡로 계획돼 있으며, 평형별 세대는 ▲51㎡ 128세대 ▲59㎡ 554세대 ▲74㎡ 123세대 ▲84㎡ 746세대 ▲110㎡ 137세대로 구성됩니다.
방배 15구역 남서 측에 이수초등학교와 동측으로 이수중학교와 인접해 있어 향후 사업시행계획인가를 준비하면서 교육환경 보호(일몰제)를 위해 교육지원청과 협의를 거쳐야 합니다. 차량 출입구는 서측 12m 도로변 2개소와 동측 10m 도로변 1개소가 계획돼 있습니다. 또한 단지 내 중앙부는 고층 주거동을 배치하고 경계부에는 저층주거지를 고려해 중층 주거동을 넣을 계획입니다.

방배 15구역 입지분석
방배 15 구역은 지하철 7호선, 4호선 환승역인 이수역과 2호선, 4호선 환승역인 사당역, 7호선 내방역을 도보로 이동할 수 있는 위치에 있습니다. 단지 옆으로 남부순환로와 사당대로 가 있으며, 서리풀 터널을 통해 강남까지 15분이면 이동이 가능합니다.
학교는 이수초교, 방배초교, 이수중이 단지와 가깝게 있으며, 반경 1km내 방현초교, 방일초교, 서문여고 경문고교, 동덕여고 등이 주변에 있습니다. 녹지환경은 여의도공원 2.4배의 서리풀 공원이 인접해 있고 방배공원, 새우촌 공원 등 자연환경도 풍부해 쾌적한 삶을 누릴 수 있습니다. 또한 주변으로 이마트, 병원, 은행 등 생활 인프라도 잘 갖춰져 있습니다.
방배 15구역 예상 분양가
방배 15 구역 예상 조합원 평균 분양가는 3.3㎡(평) 당 전용 59㎡가 약 3420만 원으로 8억 5500만원, 전용 84㎡는 3.3㎡당 약 3500만 원으로 11억 9000만원으로 추정됩니다. 일반분양가는 전용 59㎡가 평당 5285만 원인 13억 2125만원, 84㎡는 평당 5365만 원으로 약 18억 2410만원으로 예상되지만 아직 초기 사업단계로 향후 변경될 것으로 보이니 참조만 하시길 바랍니다.
방배5구역 재건축 '디에이치 방배' 분양가는?
방배 5 구역은 현대건설 프리미엄 브랜드를 적용해 디에이치 방배를 사용하게 됩니다. 지상 33층 총 3080세대를 건설하게 되며, 이중 일반분양은 약 1686세대가 나올 것으로 보입니다. 얼마 전 방배
building12.tistory.com
방배6구역 래미안 원페를라 분양정보
방배 6 구역은 시공사가 삼성물산으로 선정돼 래미안 원패를라 단지명을 사용할 예정입니다. 2023년 상반기 분양예정이었으나 오염토 문제로 다소 지연될 것으로 보입니다. 총 1997세대 중 497세대
building12.tistory.com
방배 13구역, '방배 포레스트 자이'로 분양예정
방배 13 구역은 매봉재산 서쪽, 효령로 남단에 위치해 있으며, 지난해 정비계획안이 변경돼 최고 22층 높이로 총 2369세대가 건립될 예정입니다. 시공사는 GS건설로 단지명은 '방배 포레스트 자이'
building12.tistory.com
'부동산 정보' 카테고리의 다른 글
| 공덕1구역 '마포자이힐스테이트' 하반기 착공예정 (0) | 2023.04.11 |
|---|---|
| 수색 8구역 하반기 이주시작, 2025년 착공 (0) | 2023.04.11 |
| 흑석 2구역 공공재개발 추진현황 (1) | 2023.04.10 |
| GTX 플러스 기본구상(경기도)내년 4월까지 용역추진 (0) | 2023.04.10 |
| 흑석 11구역 '서반포 써밋 더힐' 사업추진 현황 (1) | 2023.04.10 |
댓글